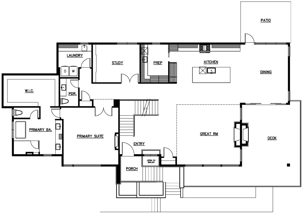
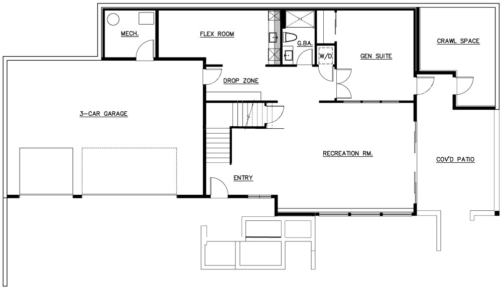
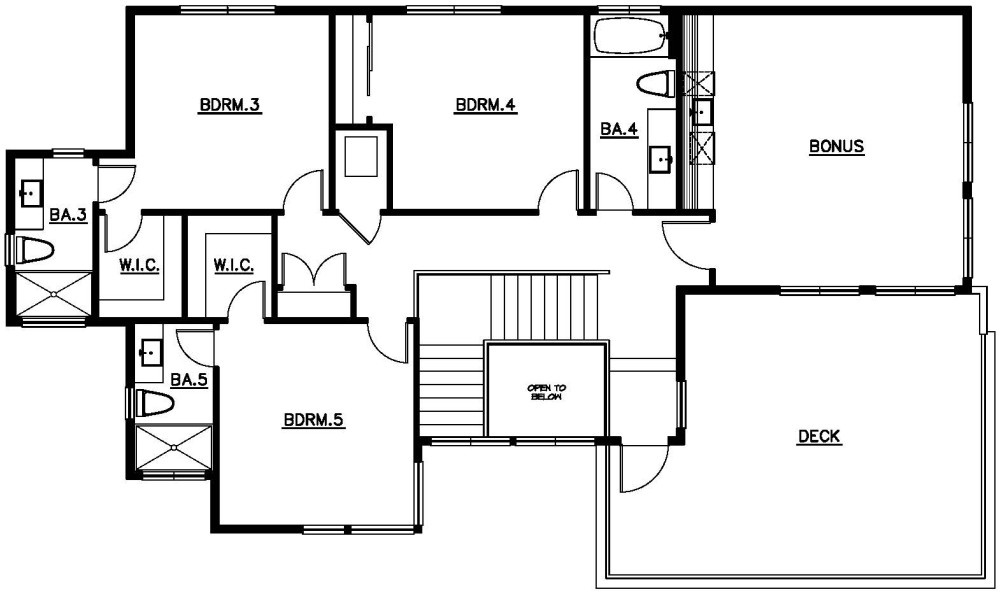
Floorplan & Features
Download Floorplan
Welcome to Mercer Island
Nestled on a lushly landscaped and fully fenced private setting, you will enjoy all of the benefits of life on Mercer Island with its top-rated schools, great access to Seattle and the Eastside and convenient shopping and restaurants.

Schedule Your Visit
Address
3036 67th Ave SE
Mercer Island, WA 98040
Get Directions